The Plaza
The Plaza
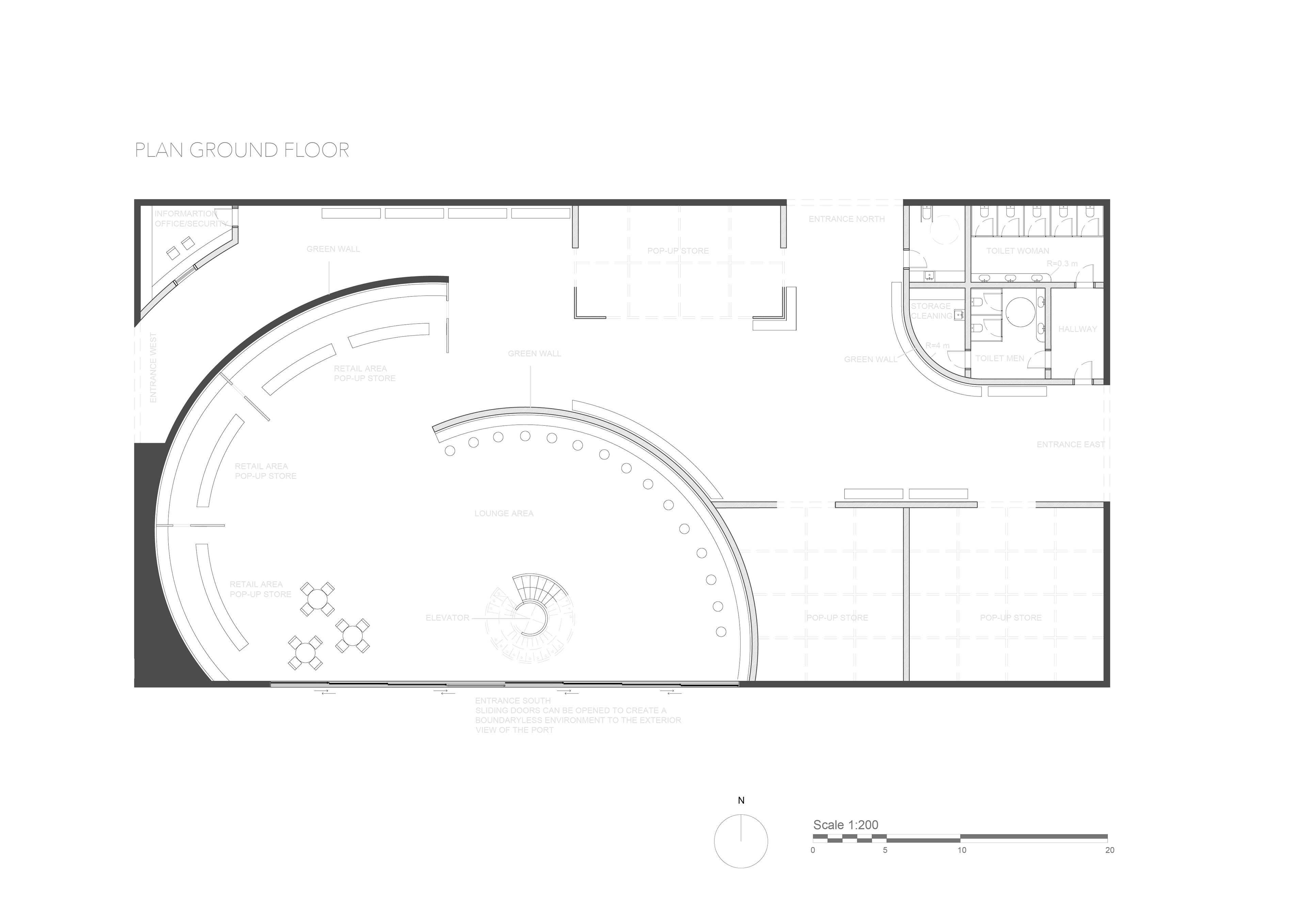
Plan - Ground Floor
Plan - Ground Floor
Elevation
Elevation
The Plaza
The Plaza
Visual Pavilion
Visual Pavilion
Scent Pavilion
Scent Pavilion
Scent Pavilion - Detail
Scent Pavilion - Detail

Video: Experimental Retail of the Future

The project received an Honorable Mention in Architectural Design / Commercial Architecture student category of the Architecture Masterprize competition in 2021.

You may also like

Back to Top